欢迎访问鹿泉区人民政府网站!
无障碍浏览进入适老化繁体版 丨 简体版
首页  > 政府信息公开  > 法定主动公开内容  > 行政执法公示  > 执法机关  > 自然资源和规划局  > 事前事后公开  > 事前公开
石家庄市自然资源和规划局鹿泉分局关于“石家庄西部上庄污水处理厂扩建工程”的公示通告
2024-04-10  来源:自然资源和规划局  浏览次数:1
石家庄市自然资源和规划局鹿泉分局关于“石家庄西部上庄污水处理厂扩建工程”的公示通告
   
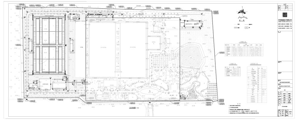
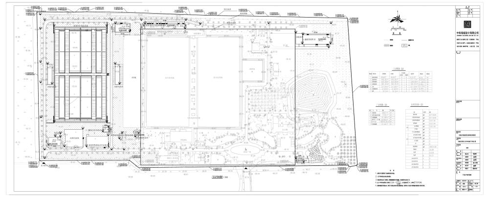
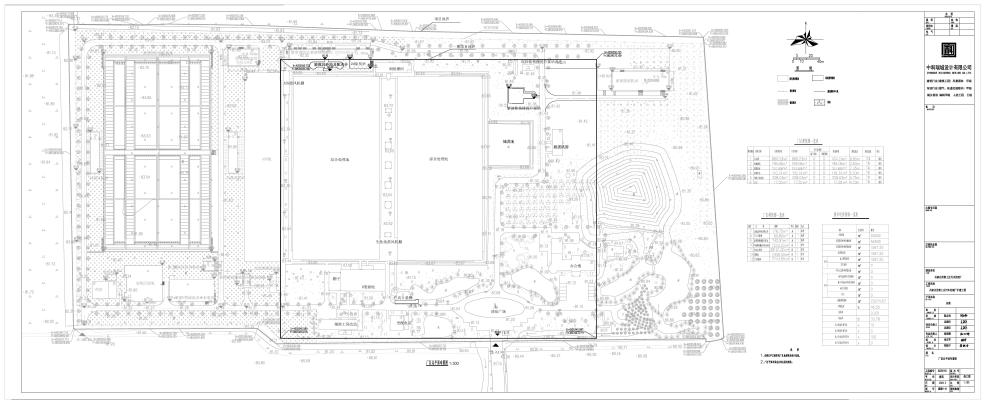
我局正在对石家庄西部上庄污水处理厂扩建工程进行审查。该项目位于鹿泉区上庄镇大宋楼村,用地性质为公共设施用地。其中中间地块用地面积50000平方米,总建筑面积1567.25平方米,容积率0.031,绿地率33.78%,建筑高度8.85米。外围地块用地面积62118.68平方米,总建筑面积2331.94平方米,容积率0.038,绿地率60.53%,建筑高度11.365米。
根据《中华人民共和国行政许可法》、《中华人民共和国城乡规划法》的有关规定,现就规划方案向社会予以公示,广泛征求和听取利益相关者的意见和建议。如以上申请事项影响到或可能影响到您的权益,你应在公示期10天内(按公示当日时间计算)通过书面或电话形式向鹿泉分局提出意见,利害关系人有申请听证的权利。相关查询请登录中国鹿泉(www.sjzlq.gov.cn) ,有效意见反馈途径为鹿泉分局。
联系电话:  82019499
附    件:  项目总平面图
               
                         2024年4月10日